- Home
- Mondragone
- Vendita
- Casa villa
- Villette bifamiliare
- Via salvo d acquisto 519180
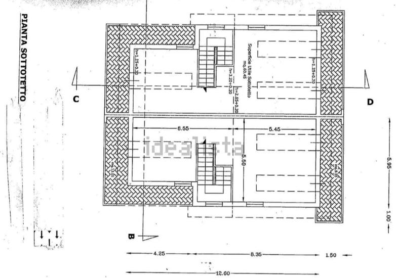
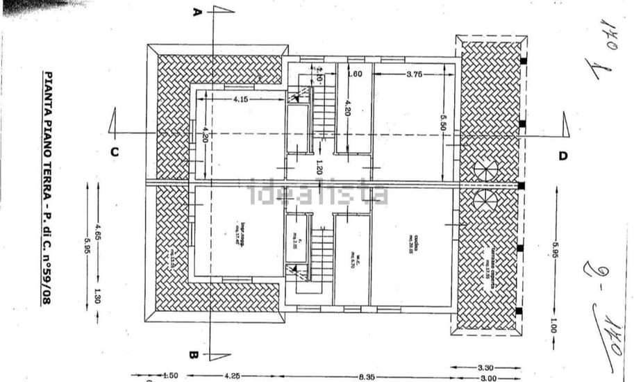
Descrizione immobile
La GM immobiliare propone villette in vendita allo stato grezzo - Via Salvo D'Acquisto
situate in una posizione privilegiata a pochi passi dalla vivace Piazza Falcone. Ogni unità si sviluppa su tre livelli, offrendo una superficie totale di 230 mq commerciali, perfetta per personalizzare ogni ambiente secondo il tuo stile.
Le villette sono composte da 3 camere da letto spaziose, un ampio salone luminoso e una cucina funzionale, oltre a 3 bagni che garantiscono comfort e praticità. Goditi il tuo tempo all'aperto grazie al grande patio e alla terrazza, ideali per cene estive o semplicemente per rilassarti al sole.
Il sottotetto offre ulteriori possibilità di utilizzo, mentre l'orientamento a est assicura una splendida luce naturale durante il giorno. Con un appezzamento di 250 mq, c'è spazio sufficiente per creare il giardino dei tuoi sogni. Non perdere l'opportunità di trasformare questa proprietà in una casa unica e accogliente. Contattaci per maggiori dettagli e per organizzare una visit

Invio messaggio in corso...
Dati immobile
Condividi